Советы

Проекты одноэтажных домов с гаражом для авто и самыми комфортными планировками

Проекты одноэтажных домов с гаражом завлекают застройщиков собственной многофункциональной архитектурой и красотой. Потому больше людей отдают предпочтение схожим решениям, обеспечивающим все нужное для жизни за городом. Эта статья поможет разобраться в преимуществах и недочетах тех либо других проектов, также предоставит приятные примеры успешных планировок и фото строений из различных материалов.

Проекты одноэтажных домов с гаражом для авто и самыми комфортными планировками

Одноэтажные дома с гаражом для кара – функциональное архитектурное решение

    4.1 Проект одноэтажного дома: фото и аспекты строительства строения 8х8 м с цоколем4.2 Достоинства и индивидуальности проектов одноэтажных домов 8 на 10 м4.3 Достоинства и недочеты одноэтажных домов 10 на 10 м с мансардой

5 Обзор современных проектов одноэтажных домов с гаражом до 150 м?

    5.1 Проекты одноэтажных домов с гаражом: фото и достоинства спостроек размером 10х12 и 12х12 м

    Аспекты и принципиальные моменты строительства одноэтажных домов с гаражом

    Удобная жизнь за городом невозможна без кара, потому строй компании проявляют изобретательность при разработке проектов спостроек с гаражом. Независимо от площади грядущего дома и его планировки, наличие помещения для тс просит соблюдения определенных правил.

    Проекты одноэтажных домов с гаражом для авто и самыми комфортными планировками

    Гараж должен соответствовать всем требованиям и быть нужного размера

    Непременно необходимо уделить внимание таковым аспектам, как:

      Сохранностьнадежность и крепкость фундаментасистема вентиляциирациональные размеры помещений, а именно гаражастроительная форма строенияматериал для строительства.

    Направьте внимание! Подъезд к дому с гаражом должен быть комфортным, а размеры самого помещения? соответствовать габаритам тс.

    Ни один проект прекрасного одноэтажного дома с гаражом не обходится без ворот. Эта конструкция считается одним из главных частей обустройства строения и влияет на его внешний вид. Почти всегда обладатели пригородного жилища отдают предпочтение автоматическим системам, которые различаются высочайшей надежностью и удобством.

    Проекты одноэтажных домов с гаражом для авто и самыми комфортными планировками

    Проект одноэтажного дома с гаражом, рассчитанным на два кара

    Малая ширина ворот составляет 2,5 м. Этот показатель можно незначительно превысить. Ежели предполагается стройку гаража для 2-ух машин, помещение придется оборудовать воротами увеличенного размера. При всем этом высота конструкции остается обычной, она равна 2,1 м.

    Достоинства и недочеты готовых проектов одноэтажных домов с гаражом

    Хоть какой проект жилого строения имеет как плюсы, так и недочеты. Ежели не принимать во внимание планировку дома с гаражом и материал, из которого он выполнен, можно выделить такие достоинства одноэтажных зданий:

    Одноэтажные сооружения не имеют лестниц, потому они располагают неопасными критериями для проживания людей приклонного возраста и малышей. Все предварительные и строй работы занимают еще меньше времени, чем того требуют конструкции с несколькими этажами. Издержки на облагораживание фундамента сокращаются? нет необходимости в строительстве сверхпрочного основания, чтоб задерживать вес тяжеленной конструкции с несколькими этажами. За одноэтажным домом еще проще и легче ухаживать. Для реализации проектов одноэтажных домов с гаражом под одной крышей требуется еще меньше места на участке, чем для строительства раздельно стоящих сооружений. Для того чтоб сесть в машинку, не требуется выходить на улицу. Даже неотапливаемая пристройка будет еще теплее, чем раздельно стоящий гараж.

    Проекты одноэтажных домов с гаражом для авто и самыми комфортными планировками

    Одноэтажный дом строится достаточно стремительно, и его возведение будет экономически прибыльным

    Строй компании, также обладатели пригородного жилища отмечают и некие недочеты, связанные с реализацией проектов одноэтажных жилых домов с гаражом:

    Габариты и форма строения стопроцентно зависят от размеров участка. Время от времени одноэтажный дом обходится застройщику дороже, чем двухуровневое здание. Это соединено с увеличенной площадью кровли, также большенный длиной коммуникаций. Индивидуальности эксплуатации гаража превращают его в пожароопасное помещение, потому будет нужно принять особые защитные меры, чтоб предупредить возгорание дома.

    Принципиально! Проект непременно должен предугадывать доброкачественную принудительную вентиляцию, при этом это касается не только лишь гаража, да и дома в целом. В неприятном случае локальный климат в жилых помещениях будет неблагоприятным, а воздух – сырым.

    Проекты одноэтажных домов с гаражом: строения различной формы

    Форма строения – это обширное понятие. Оно включает не только лишь геометрию стенок, да и форму оконных и дверных просветов, тип крыши, характеристики крыльца и защитного козырька над ним и т. п. Все эти элементы влияют на экстерьер строения. Форма дома может иметь правильную либо некорректную геометрию.

    Проекты одноэтажных домов с гаражом для авто и самыми комфортными планировками

    Проект одноэтажного дома прямоугольной формы с гаражом и террасой

    Правильными числятся такие виды конструкций:

      Прямоугольные и кубическиеП — и Г-образные домаН — и Т-подобные.

    Строения П-, Т-, Г — и Н-образной формы подходят для проживания одной большенный семьи либо же сходу нескольких поколений. Такие дома имеют массу преимуществ. Они разрешают внести в проект личный вход для каждой семьи, также обеспечить всех жильцов личным местом. Естественно, в данном случае часть помещений создана для совместного отдыха.

    При разработке проектов спостроек с неверной геометрией почаще всего отталкиваются от формы участка, где будет строиться дом. Чтоб достигнуть гармонии, застройщики обычно повторяют его силуэт в архитектуре. Эта задачка сложная и просит личного подхода, так как такие проекты довольно сложны.

    К строительству дома неверной формы в главном прибегают из чисто эстетических, а не практических суждений. Строения с таковой архитектурой выделяются на общем фоне, они неповторимы и смотрятся особенно. При этом для заслуги неверной формы совсем не непременно нарушать геометрию стенок. Довольно обустроить крышу с уникальной необычной конструкцией.

    Проекты одноэтажных домов с гаражом для авто и самыми комфортными планировками

    Почаще всего одноэтажные дома имеют квадратную, прямоугольную, Г-, П-, Т — и Н — образную форму

    Проекты и фото одноэтажных домов квадратных и прямоугольных форм

    Проекты одноэтажных прекрасных домов кубической формы завлекают застройщиков высочайшими показателями теплосбережения. Такие строения имеют ординарную конструкцию, которая стремительно греется и медлительно остывает. Эффект теплосбережения достигается благодаря тому, что площадь контакта поверхности стенок с наружной средой чрезвычайно мала. Квадратные строения малогабаритны, стремительно и просто возводятся. На этом список их плюсов завершается.

    Распределение внутреннего места в квадратном доме сопровождается определенными сложностями. Составить удобную планировку чрезвычайно проблематично, так как в проектах таковых спостроек фактически постоянно находятся смежные комнаты. Схожее размещение помещений сопровождается определенными неудобствами для жильцов.

    Не считая этого, в проект квадратного строения чрезвычайно тяжело вписать помещения технического и хозяйственного предназначения, к примеру, кладовую, прачечную, котельную и т. п. Потому при желании обзавестись маленьким домом с гаражом стоит отрешиться от кубических сооружений.

    Направьте внимание! Строения кубической формы обычно возводят на дачных участках для сезонного использования. Они не располагают критериями для проживания на неизменной базе.

    Проекты одноэтажных домов с гаражом для авто и самыми комфортными планировками

    Проект одноэтажного прямоугольного дома площадью 183 м? с гаражом

    В отличие от квадратных сооружений, дома прямоугольной формы пользуются огромным спросом. В проекты таковых спостроек можно включить много изолированных комнат, выделить зону для встроенного гаража либо хозяйственных помещений. Постройки в форме прямоугольника разрешают поделить внутреннее место дома на «шумную» и «тихую» части. Это преимущество также понадобится, ежели требуется расположить комнаты для отдыха на наивысшем удалении от гаража.

    Проект одноэтажного дома с мансардой станет прелестной кандидатурой для хозяев пригородных участков, которые не могут для себя дозволить стройку двуэтажного строения. Сооружения прямоугольной формы подступают для этих целей идеальнее всего.

    Прямоугольные дома не различаются малогабаритными размерами, что является значимым недочетом. Для строительства схожих спостроек будет нужно большая площадь. При всем этом к участку выдвигаются доп требования. Его поверхность непременно обязана быть ровненькой, а форма – пропорциональной и симметричной.

    Какими чертами владеют проекты одноэтажных домов Г-образной и П-образной формы

    Угловые строения имеют необычную и эстетически симпатичную архитектуру. При наружной компактности они довольно просторны снутри. Угловая форма дозволяет организовать комфортный внутренний дворик. Стенки строения накрепко защитят это место от ветра. Такие проекты подступают обладателям пригородных участков угловой либо квадратной формы, где просто нереально выстроить прямоугольный дом.

    Проекты одноэтажных домов с гаражом для авто и самыми комфортными планировками

    Дома П — и Г-образной формы являются хорошим решением для огромных семей

    В планировку Г-образных сооружений органично вписываются доп пристройки, потому в сети можно повстречать чрезвычайно много проектов одноэтажных домов с гаражом и верандой либо террасой. Обычно эти элементы располагаются во внутреннем углу, который образуют фронтоны строения. Часто террасам также присваивают угловую форму, которая поддерживает геометрические индивидуальности дома.

    Ежели здание имеет один вход, то его обычно располагают в крыле, совмещенном с террасой. Но наиболее высочайшим спросом пользуются проекты с 2-мя независящими входами. Их располагают на различных фронтонах.

    В сопоставлении со обычными зданиями угловые дома имеют больше способностей в отношении внутреннего места. Планировка часто включает «тихую» зону с кабинетом и спальней в одном крыле, а другое отводится под кухню и гостиную. Такие проекты могут полагать огромное количество помещений различного предназначения, потому угловые дома чрезвычайно удобны и подступают для неизменного проживания. Вход в гараж быть может как с улицы, так и из помещения.

    Нужный совет! При разработке проекта Г-образного дома непременно необходимо учитывать ширину фронтонов. Ежели куцее крыло строения сделать наиболее широким, сооружение в целом будет смотреться красивее и гармоничнее.

    Проекты одноэтажных домов с гаражом для авто и самыми комфортными планировками

    Проект дома Г-образной формы с гаражом на три кара

    Проекты П-образных домов разрешают в основном воплотить потенциал, сокрытый в угловых постройках. При всем этом их архитектура смотрится наиболее органично и сбалансировано.

    В одном здании поместятся все помещения, нужные для удобной и комфортной жизни:

      Жилые комнатыбассейнтехнические помещенияпарадные зоныгараж и т. п.

    Строения П-образной формы разрешают контролировать степень освещенности. Помещения можно расположить так, чтоб в каждую комнату попадало определенное количество дневного света. Хорошо составив планировку огромного дома, реально избежать необходимости в установке световых колодцев, обеспечивающих доступ солнечным лучам во внутренние помещения.

    Лаконичный обзор наилучших проектов одноэтажных домов

    Площадь одноэтажных домов быть может разной. Строй компании дают обычные проекты обычных одноэтажных домов 8х8, 8х10 и 10х10 м с вариабельной планировкой помещений.

    Проекты одноэтажных домов с гаражом для авто и самыми комфортными планировками

    Самые комфортные варианты одноэтажных домов имеют цокольный этаж либо мансарду

    Нужный совет! При подготовке проекта одноэтажного дома непременно необходимо учесть возможность расширения в перспективе. Может быть, в дальнейшем обладатель пожелает прирастить площадь строения, потому лучше продумывать планировку с учетом этих аспектов.

    При желании обладатель земляного участка может расширить проект в процессе строительства либо же доработать уже готовый дом:

    Добавить к сооружению крышу с мансардой – это дополнение не очень скажется на стоимости строительства, зато у обладателя покажется доп этаж, где можно будет организовать спальню либо кабинет. Сделать односкатную крышу – для этого одна из стенок приподнимается, в итоге чего же появляется доп место , которое можно применять на свое усмотрение. Ежели дозволяет размер участка, можно прирастить площадь дома, пристроив к нему доп комнаты. Добавить подвал либо цокольный этаж – это место подойдет для обустройства сауны, гаража либо кладовки огромного размера. Организовать плоскую крышу – ежели участок небольшой, плоская крыша может стать настоящей подменой открытой площадки для отдыха.

    Кирпич, пенобетон, газобетон как главные строй материалы. Каркасная разработка. Строения с мансардами, балконами, террасами.

    Проект одноэтажного дома: фото и аспекты строительства строения 8х8 м с цоколем

    Проекты спостроек с цокольным этажом пользуются у застройщиков высочайшим спросом. Такие сооружения имеют массу преимуществ:

    Проекты одноэтажных домов с гаражом для авто и самыми комфортными планировками

    Проект маленького одноэтажного дома с гаражом размером 8х8 метров

      Разрешают сберечь строй материалыподземный этаж будет делать функцию доп фундаментав цоколе можно расположить гараж либо обустроить подсобные помещения, освободив жилую площадь наверхуподвал подойдет для установки отопительного оборудования и узловых компонент системы водоснабжения, что дозволит удалить все неприглядные элементы из жилых помещенийцоколь может употребляться в качестве погреба, располагающего необходимыми критериями для хранения консервации и урожая.

    К недочетам таковых проектов относят высшую стоимость, также необходимость в обустройстве высококачественной вентиляционной системы и гидроизоляции в подвале. К тому же далековато не каждый участок подойдет для строительства строения с цокольным этажом.

    До того как приостановить собственный выбор на проекте одноэтажного дома с подвалом и гаражом, необходимо отыскать ответы на последующие вопросцы:

    Проекты одноэтажных домов с гаражом для авто и самыми комфортными планировками

    В маленьком одноэтажном доме цокольный этаж может делать роль подвала либо подсобного помещения

    Какова глубина пролегания грунтовых вод? Ежели подземные воды находятся неподалеку от поверхности, стройку цоколя нереально. Какой уклон имеет земляной участок? Ежели строительная площадка размещается под мощным наклоном, сглаживание большенный площади востребует значимых издержек. На каком типе грунта будет стоять здание? Дом с цоколем и болотистая местность просто несовместимы.

    Достоинства и индивидуальности проектов одноэтажных домов 8 на 10 м

    Планы одноэтажных домов 8 на 10 м обширно всераспространены, так как у большинства людей, живущих за городом, имеется кар, а время от времени и несколько. Дома такового размера разрешают оборудовать неплохой гараж, где можно упрятать машинку от действия неблагоприятных погодных критерий. По мере необходимости делают пристройку и без особенных сложностей проводят в нее коммуникационные системы.

    Достоинства планировки одноэтажного дома 8 на 10 м, включающего гараж:

    Удобство – гаражные двери ограждают кар от негативного действия разных причин окружающей среды, а их размер дозволяет просто вносить в дом большие предметы. Экономичность – нет необходимости в строительстве отдельного фундамента и стенок для гаража, который будет разделен от основного строения всего одной перегородкой. Так как одна из стенок будет общей, это даст возможность сберечь на строй материалах. Функциональность – гараж может употребляться в качестве кладовой, подходящей для хранения предметов огромного размера, к примеру, детских колясок и самокатов, велосипедов, спортивного оборудования и садового инструментария.

    Проекты одноэтажных домов с гаражом для авто и самыми комфортными планировками

    Одноэтажные дома размером 8х10 м с гаражом имеют много преимуществ

    Нужный совет! Чтоб хранение вещей в гараже было очень оптимальным, лучше установить полки на стенках, особые стеллажи для инструмента и держатели для велосипедов. Они дозволят высвободить внутреннее место, также поддерживать порядок в помещении.

    Проекты одноэтажных домов 8 на 10 м имеют и недочеты:

    Ежели гараж не утеплить, то холод из этого помещения будет просачиваться в дом. Ежели вентиляционная система установлена некорректно либо работает не очень отлично, выхлопные газы кара будут загрязнять воздух в жилой зоне.

    Достоинства и недочеты одноэтажных домов 10 на 10 м с мансардой

    Площадь одноэтажного дома размером 10х10 м составляет около 150 м?. Строения таковых габаритов разрешают комфортно расположить огромную семью с детками.

    Достоинства сооружений с мансардным этажом:

      Экономия стройматериалов ежели верно применять место мансардного этажа, можно в два раза прирастить функциональность строения

    Проекты одноэтажных домов с гаражом для авто и самыми комфортными планировками

    Мансарда делает одноэтажное здание наиболее комфортным и многофункциональным

      Большая крыша еще подольше сохраняет тепло, что дозволяет сберечь на отоплениипрокладка коммуникаций на мансардный этаж не просит особенных усилий и суровых издержекместо под крышей можно применять для обустройства зоны отдыха, расположив там бильярдную либо библиотекуинтерьер мансарды будет смотреться чрезвычайно оригинально.

    Недочеты проектов огромных одноэтажных домов с мансардой:

      Ежели нарушить технологию строительства мансардного этажа, место под крышей будетпрохладнымтак как стенки мансарды размещены под углом, в этом помещении инсталлируются особые окна, стоимость которых в 2-3 раза превосходит стоимость обыденных конструкций ежели в зимнюю пору выпадает много снега, помещение под крышей будет затемнено.

    Обзор современных проектов одноэтажных домов с гаражом до 150 м?

    Строения, где жилая площадь добивается 150 м?, могут вместить семью, состоящую из 4-5 человек. В проект современного одноэтажного дома с гаражом можно включить гостиную, три спальни, кухню. Красивым дополнением к такому сооружению станет мансардный этаж либо цоколь, позволяющий упрятать разводку коммуникаций.

    Проекты одноэтажных домов с гаражом для авто и самыми комфортными планировками

    Дома с гаражом площадью до 150 м? подступают для проживания семей до 5 человек

    У таковых зданий есть много преимуществ:

      Для строительства могут употребляться разные материалы, к примеру, пеноблоки, камень, брус и т. п.малогабаритные размеры, дозволяющие выполнить стройку дома на маленьком участкевозможность уменьшить коммунальные расходы, так как жилая площадь, которая нуждается в отапливании, невелика.

    К современным проектам одноэтажных домов из данной категории можно отнести постройки размером 11х11, 10х12 и 12х12 м, также сооружения с мансардой и гаражом.

    Нужный совет! Ежели гараж находится не в цоколе, он будет скрадывать место в доме. Обладатели маленьких участков в особенности остро чувствуют недочет жилой площади. Чтоб восполнить этот минус, одноэтажный дом лучше дополнить мансардой.

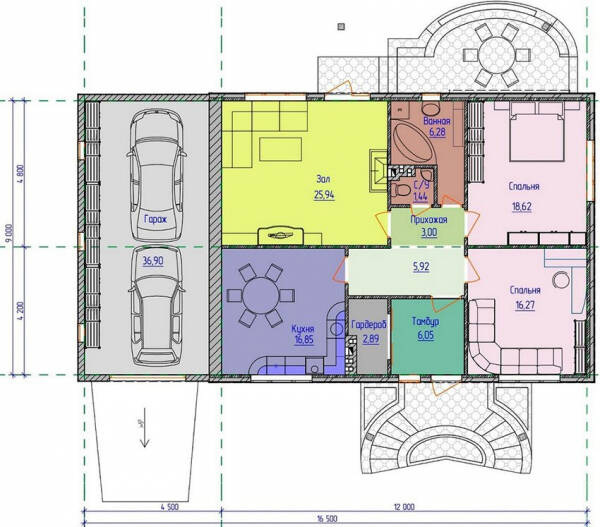
    Проекты одноэтажных домов с гаражом: фото и достоинства спостроек размером 10х12 и 12х12 м

    В среднем размер жилой площади равен 140 м? . Архитектура строения и планировка помещений могут быть различными. Подбирая пригодный вариант дома, имеющего такие габариты, непременно необходимо учесть, сколько человек будет на неизменной базе проживать под одной крышей.

    Проекты одноэтажных домов с гаражом для авто и самыми комфортными планировками

    Проект одноэтажного дома размером 10х12 метров с гаражом для кара

    Независимо от избранного проекта, одноэтажные сооружения размером 10х12 и 12х12 м владеют целым рядом прибыльных плюсов:

      При желании прирастить полезную площадь в таковых постройках можно сделать мансарду, сконструировав двускатную крышуотсутствие лестниц делает дом неопасным для малышей и людей приклонного возраста, так как нет необходимости подниматься по лестнице на 2-ой этаж внешний облик фасадной части строения можно варьировать, добавив строительные элементы, к примеру, эркеры либо окна с панорамным остеклением, арки и остальные декоративные детали.

    Проекты спостроек размером 10х12 и 12х12 м разрешают организовать в доме три спальни либо же одну из их отвести под столовую .

    Индивидуальности деревенских домов: проекты экологичных спостроек из бруса

    Посреди всех имеющихся вариантов особенное место занимают одноэтажные деревенские дома, сложенные из бруса. Метраж таковых зданий быть может различным – от 6х6 до 11х11 м. Это зависит от избранного проекта и размера бруса. Натуральные материалы пользуются высочайшим спросом у застройщиков. Проекты деревенских домов, реализованные на пригородных участках, смотрятся прекрасно и гармонически, они отлично вписываются в природный ландшафт. Ежели соблюдать технологию строительства, такие постройки сумеют прослужить довольно длительно.

    Проекты одноэтажных домов с гаражом для авто и самыми комфортными планировками

    Деревенские дома из бруса характеризуются экологичностью, прочностью и неплохим теплосбережением

    Достоинства проектов одноэтажных домов с бруса с гаражом:

      Для строительства может употребляться как обыденный, так и профилированный брус, потому проекты деревенских домиков имеют огромное количество вариантов дизайнаматериал различается прочностью и экологичностьюдревесная порода делает в доме удобные для человека климатические условиястроительный материал неопасен для здоровья жильцовустановка коммуникаций в доме не просит особенных усилий древесная порода владеет неплохими теплосберегающими качествами, она не пропускает холод снаружи, в связи с сиим брусовые дома подступают для регионов с жестокими зимами.

    Принципиально! Древесная порода отлично впитывает воду, потому стенки нужно гидроизолировать. Не считая этого, материал может пострадать от плесени и разных микробов. Чтоб этого избежать, следует обработать дерево дезинфицирующими и защитными средствами.

    Может быть ли составить проект одноэтажного дома с гаражом и баней под одной крышей

    Ежели хорошо распределить внутреннее место, то в помещении полностью реально расположить сауну либо баню. Этот вариант планировки можно разглядеть на примере строения размером 13х16 м. Общая площадь помещений составляет около 130 м?. В этом случае можно узреть, как вариабельной бывает планировка, сделанная на базе 1-го и такого же проекта.

    Проекты одноэтажных домов с гаражом для авто и самыми комфортными планировками

    Проект одноэтажного дома с баней и гаражом для 1-го кара

    В первом случае проект одноэтажного дома с сауной и гаражом включает такие помещения:

      Две спальни .

    Так как площадь санузла маленькая, места хватает лишь для душевой. В данной ситуации размер помещения дозволяет установить современную сауну, которая сделана в форме кабинки малогабаритного размера. Преимущество данного проекта состоит в том, что из раздевалке можно попасть прямо в гараж, а оттуда имеется выход на улицу через техническое помещение.

    Во 2-м случае размер санузла увеличен за счет раздевалке, которая удалена с планировки. Данной площади полностью довольно для того, чтоб обустроить в доме баню. При всем этом оба проекта имеют два входа с различных сторон строения, что чрезвычайно комфортно .

    Материалы для строительства спостроек с гаражом: фото домов и индивидуальности проектов

    Для строительства одноэтажного строения с гаражом могут употребляться разные материалы. Выбор зависит от экономных способностей обладателя, архитектурных изысков строения, от самого проекта, также параметров грунта, на котором будет стоять дом.

    Проекты одноэтажных домов с гаражом для авто и самыми комфортными планировками

    Для строительства домов употребляют кирпич, древесную породу и бетонные блоки

    Для строительства пригородного жилища обычно используются такие материалы:

      Кирпичдревесная породаячеистый бетон .

    Направьте внимание! До того как закупать материалы, нужно кропотливо высчитать размеры грядущего строения. В проектной документации следует тщательно расписать предполагаемые виды работ, порядок их выполнения, также составить перечень нужных материалов. На базе этих данных и делается расчет.

    Из каких блоков лучше строить гараж: проекты на базе газобетона и пеноблоков

    Газо — и пенобетон представляют собой разновидности 1-го и такого же материала – ячеистого бетона. Различие меж ними заключается только в технологии производства, что в итоге сказывается на технических и эксплуатационных параметрах этих блоков.

    Проекты одноэтажных домов с гаражом для авто и самыми комфортными планировками

    Проект одноэтажного блочного дома с гаражом для кара

    Материалы для строительства газобетонных спостроек имеют обычную толщину:

      200 мм375 мм400 мм500 мм.

    При разработке проекта одноэтажного дома с гаражом из пеноблоков либо газоблоков непременно необходимо учесть климатические индивидуальности региона. Дело в том, что бетон владеет гигроскопичными качествами, потому стенки строения необходимо защитить от действия неблагоприятных причин окружающей среды. Для этого употребляются такие материалы отделки, как:

      Сайдингискусственный каменьоблицовочный кирпичдекоративная штукатурка и т. д.

    Проекты одноэтажных домов с гаражом для авто и самыми комфортными планировками

    Газо — и пеноблоки совершенно подступают для строительства одноэтажных спостроек

    Малая плотность материала – 300 кг/м?. Этот показатель подбирается с учетом тех задач, для решения которых будут употребляться блоки. К примеру, для строительства несущих стенок потребуются изделия, плотность которых составляет не меньше 400 кг/м?. Перегородки снутри дома, не выполняющие несущих функций, можно сконструировать из наименее плотного материала, покупка которого обойдется дешевле.

    Принципиально! Для реализации проекта одноэтажного дома из газобетона с гаражом необходимо применять материалы соответственной плотности. Не стоит сберегать на сохранности.

    Как воплотить проект одноэтажного дома с гаражом из кирпича

    В проектную документацию таковых спостроек в главном закладывается силикатный либо глиняний кирпич. Выбор материал зависит от погодных особенностей региона, где будет размещаться дом. С учетом этого аспекта толщина кладки на несущих стенках может варьироваться в границах 250-640 мм.

    Проекты одноэтажных домов с гаражом для авто и самыми комфортными планировками

    Проект одноэтажного дома из кирпича с гаражом на два авто

    Применение инноваторских технологий, направленных на энергосбережение, дозволяет понизить массу кирпича в стенках готового дома. Ежели проектом одноэтажного кирпичного дома с гаражом предусмотрена сплошная кладка наружных стенок шириной 640 мм, свойства строения можно сделать лучше, изменив подход к его строительству. Для этого толщина кладки миниатюризируется до 250 мм, а в качестве утеплителя добавляется экструдированный пенополистирол .

    Почаще всего для строительства пригородных особняков применяется пустотелый глиняний кирпич. Пустоты в изделиях, заполненные воздухом, усиливают теплосберегающие характеристики кладки. Полнотелый кирпич в основном подступает для обустройства вентиляционных стояков. Этот вариант материала наиболее эффективен, чем керамзитобетонные модули. Полнотелый кирпич также подойдет, ежели проектом предвидено наличие камина в доме.

    Индивидуальности проектов одноэтажных каркасных домов с гаражом

    Дома, построенные по каркасной технологии, наименее надежны и долговечны, чем кирпичные либо газобетонные сооружения. Но стоимость реализации схожих проектов еще ниже, а сроки? существенно короче. Не считая этого, каркасные строения имеют относительно легкую конструкцию, потому их можно устанавливать на фундаменты столбчатого либо свайного типа. Такие основания не требуют больших издержек и возводятся чрезвычайно стремительно.

    Проекты одноэтажных домов с гаражом для авто и самыми комфортными планировками

    Стройку каркасного дома выйдет дешевле и резвее, чем кирпичного либо блочного

    Проектная документация каркасных спостроек обычно включает чертежи наружных и внутренних стенок. Подробная информация обо всех аспектах конструкции просто нужна, так как она употребляется конкретно в процессе строительства. Потому стоимость самих проектов быть может выше, чем в случае строительства кирпичных либо газобетонных спостроек.

    Каркасные дома в большей степени имеют древесную конструкцию. В качестве несущих стоек употребляется брус, который обшивается досками сечением 40х150 либо 50х200 мм. На западе каркасные постройки чрезвычайно популярны, но у нас такие строения эксплуатируются только сезонно.

    Выбору готового проекта либо разработке новейшего необходимо уделить много времени. Чем тщательнее будет обмыслена планировка и учтены все аспекты, тем паче комфортным и удобным получится дом в конечном итоге.

    Источник

    Добавить комментарий

    Ваш адрес email не будет опубликован. Обязательные поля помечены *

    Похожие статьи

    Кнопка «Наверх»
    \n